Z431 – funkcjonalny dom z pełnym piętrem na wąską działkę
Projekt Z431 to odpowiedź na potrzeby inwestorów posiadających wąskie działki, którzy nie chcą rezygnować z wygody pełnowymiarowego piętra. Powierzchnia użytkowa nieprzekraczająca 110 m² i przemyślany układ pomieszczeń czynią ten dom idealnym rozwiązaniem dla rodzin szukających komfortu w zwartej formie zabudowy.
Idealny na działkę poniżej 16 metrów szerokości
Dzięki pełnej ścianie bez okien na jednej z elewacji, budynek można zlokalizować już 1,5 metra od granicy działki – nawet przy szerokości działki poniżej 16 metrów. To kluczowa zaleta dla inwestorów ograniczonych lokalizacyjnie.
Nowoczesna, wyrazista bryła
Z431 wyróżnia się nowoczesnym designem i ciekawym zestawieniem materiałów elewacyjnych. Dwuspadowy dach z kalenicą ustawioną prostopadle do drogi został pokryty elegancką blachą na rąbek, która opada aż do ziemi, tworząc integralną część elewacji. Po przeciwnej stronie dach schodzi nisko, tworząc zadaszenie nad tarasem.
Fasada łączy w sobie elementy drewna, jasnoszarego stiuku i metalu, co nadaje budynkowi współczesny, lekko industrialny charakter. Proste zadaszenia przy wejściu i tarasie dodają bryle dynamiki, jednocześnie zwiększając jej praktyczność.
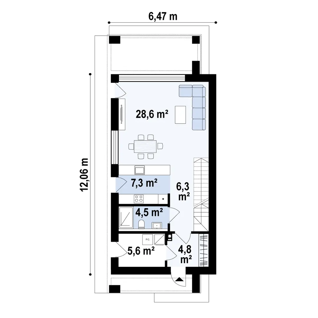
Parter – otwarta przestrzeń dzienna i funkcjonalna organizacja
Zadaszone wejście prowadzi do przedsionka, w którym przewidziano miejsce na dużą szafę. Po przeciwnej stronie zlokalizowano pomieszczenie gospodarcze z dostępem od wewnątrz. Parter oferuje także wygodną łazienkę z prysznicem oraz otwartą strefę dzienną.
Salon z dużymi przeszkleniami do samej podłogi jest jasny i przytulny, a jego przestrzeń optycznie powiększa półwyspa kuchenna, która oddziela kuchnię od części wypoczynkowej. Dzięki przemyślanemu układowi, wnętrze zachowuje funkcjonalność i przestronność mimo kompaktowych wymiarów.
Piętro – pełne piętro z widokiem i komfortem
Na piętrze zaprojektowano trzy przestronne sypialnie, idealne dla domowników i gości. Zamiast tradycyjnych okien połaciowych zastosowano klasyczne okna pionowe, które lepiej doświetlają wnętrza i zapewniają atrakcyjny widok na otoczenie.
Przestronna łazienka pomieści zarówno wannę, jak i pralkę, a nawet dwie umywalki, co znacząco podnosi komfort codziennego użytkowania.
Z431 – maksymalna funkcjonalność na minimalnej szerokości
Projekt Z431 to znakomita propozycja dla rodzin, które szukają nowoczesnego, w pełni funkcjonalnego domu z pełnym piętrem na wąską działkę. Prosty dach, ograniczona liczba przeszkleń na jednej ze ścian, a także przemyślany układ wnętrz sprawiają, że jest to projekt idealny dla inwestorów chcących maksymalnie wykorzystać każdy metr dostępnej przestrzeni.





















































